PARITALOT
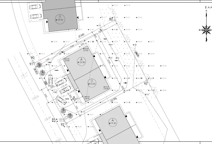
Soidinmäentie 11
Ennakkomyynnissä 2026 valmistuva paritalo. Tällä hetkellä vielä asunnon varaaja pääsee vaikuttamaan sisämateriaaleihin. Kuvat ovat aikaisemmista samanlaisista kohteista.
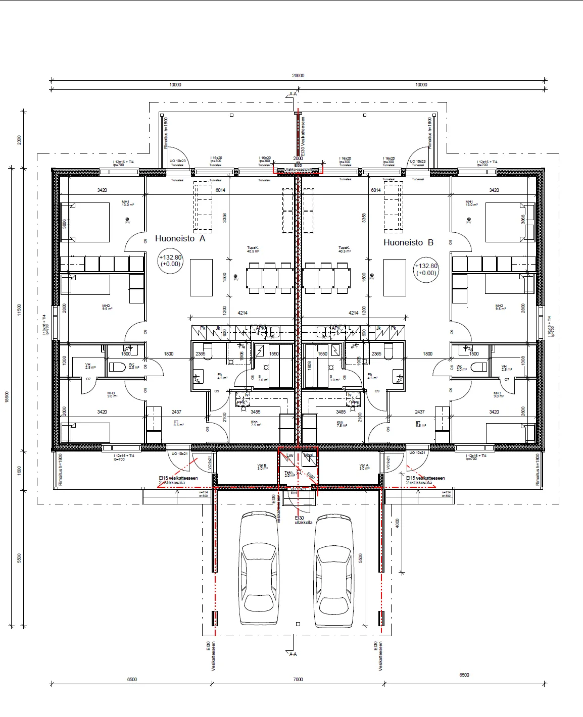
Kuvaus
Maalämpöinen ja täysin varusteltu paritalokoti uudella Haapamäen pientaloalueelta. Makuuhuoneet ovat sijoitettu huoneiston laitaan. Päämakuuhuone on hyvänkokoinen ja siinä on runsaasti kaappitilaa.
Kodinhoitohuone, pesuhuone ja sauna ovat sijoitettu hyvällä suunnittelulla omaksi kokonaisuudekseen. Saunojaa hemmottelevat tilava pesuhuone, epäsuora led-valaistus ja tervalepän tuoksu. Isompi, erillinen wc sijaitsee eteisen vieressä. Valaistuksessa on panostettu runsaasti upotettuihin ledvaloihin. Lämmitysmuotona toimii maalämpö vesikiertoisella lattialämmityksellä. Raikkaasta huoneilmasta huolehtii koneellinen tulo- ja poistoilmanvaihto lämmöntalteenotolla. Talossa on kuitunettivaraus, ja datakaapelointi on asennettu myös makuuhuoneisiin. Autokatoksessa sijaitsevasta sähkökeskuksesta on helppo ottaa varaus sähköautolle. Säilytystilana on lämmin ulkovarasto.
Toivalan palvelut ja ulkoilumaastot, päiväkoti ja koulu ovat kaikki kävelymatkan päässä. Siilinjärven ja Toivalan palveluihin on vain hetken ajomatka. Läheisistä liittymistä on helppo liittyä moottoritielle, josta ajomatka Kuopion keskustaan hoituu 15 minuutissa.
Kysy myös seuraavia alkavia kohteita
VALMISTUMINEN
- Soidinmäentie 11 valmistuu Helmi-Maaliskuu 2026
Katso kuvia kohteista
Ota yhteyttä ja
kysy lisää
Me autamme aina mielellämme
045 843 3158
rakennuspalvelujheide(at)gmail.com
Varaaminen
Voit laittaa varaustiedustelun verkkosivujen kautta lomakkeella (VARAA -painike). Vastaamme varaustiedusteluun eikä varaus ole sitova ennen vahvistustamme. Voit myös tiedustella kohteista sekä tehdä varauksen soittamalla 045 843 3158.
